Red Hill
Arlington - 2587 Cornelius Pl NW #79, Concord, NC 28027
Details
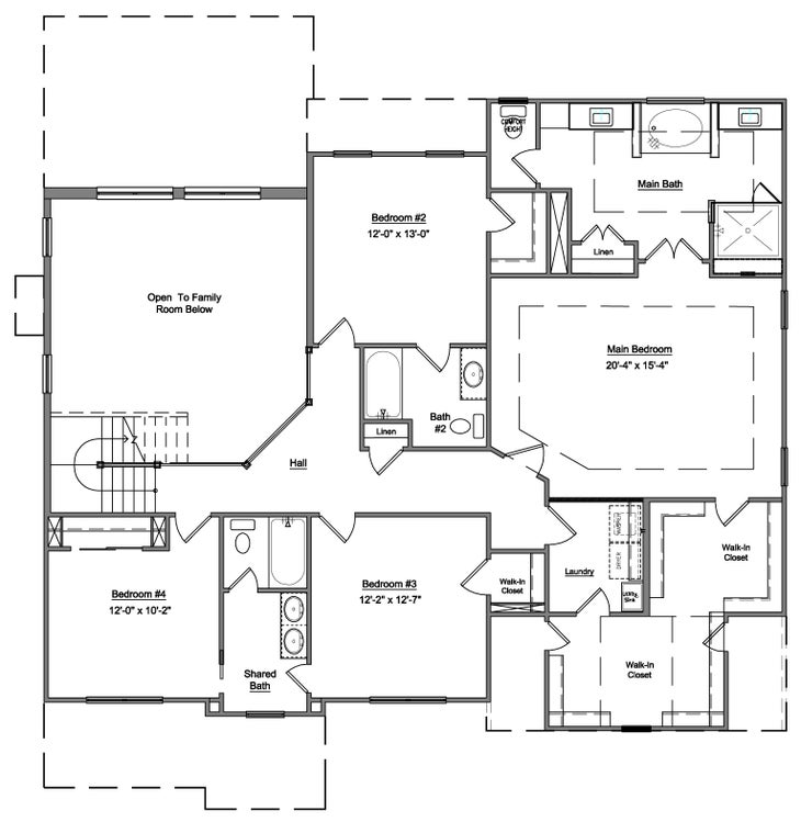
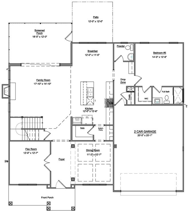
The Arlington features an award-winning open floor plan with a dramatic two-story family room that makes the space feel bright, airy, and open. Perfect for both relaxing and entertaining, the main floor includes a flex room off the foyer, a formal dining room, secondary bedroom with private bath, and a centrally located kitchen with plenty of storage and workspace, Upstairs, the private main suite offers a luxurious retreat with a generous walk-in closet and spa-like bathroom with garden tub and shower.The family room features a multi-slide door that leads out to the large screened porch. This is the perfect place to enjoy all seasons. The kitchen features quartz countertops and GE appliances, as well as a butler's pantry for extra storage and prep space. This home offers a unique opportunity to become part of the charming Red Hill community—one of Concord's hidden gems. Rich in character and history, this very property is where the home of Martin Pheifer once stood, a prominent local figure and close friend of George Washington.
Along with its rich history, this neighborhood offers many “one-with-nature” amenities such as scenic walking trails, access to the Carolina Thread Trail, and peaceful park areas—perfect for enjoying the outdoors just steps from your front door. Just minutes from I-85, Highway 29, and George Liles Parkway, this community offers easy access to shopping, restaurants, and premier medical facilities. Residents will also enjoy Cabarrus County's excellen…
Specifications
-
SingleFamily
-
3,323 sqft
-
2.0 Stories
-
4 Baths
-
5 Bedrooms
-
2 Garage
-
2025-09 Built
-
Single Family
