Red Hill
Harper - 2579 Cornelius Pl NW Lot 81, Concord, NC 28027
Details
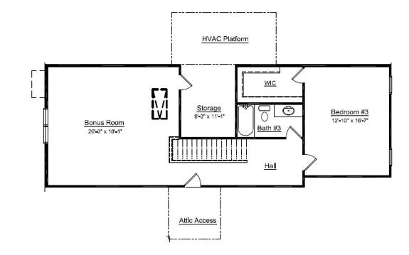
Welcome to the Harper, a thoughtfully crafted layout ideal for both empty nesters and growing families. Its open-concept design creates a warm, inviting space that's perfect for everyday living and effortless entertaining. The main level includes a spacious primary suite, a flexible room that can serve as a home office or formal dining area, and a secondary bedroom for guests or family. Upstairs, you'll find a private third bedroom and a generous bonus room—perfect for a media room, play space, or hobby retreat.This home offers a unique opportunity to become part of the charming Red Hill community—one of Concord's hidden gems. Rich in character and history, this very property is where the home of Martin Pheifer once stood, a prominent local figure and close friend of George Washington.
Along with its rich history, this neighborhood offers many “one-with-nature” amenities such as scenic walking trails, access to the Carolina Thread Trail, and peaceful park areas—perfect for enjoying the outdoors just steps from your front door. Just minutes from I-85, Highway 29, and George Liles Parkway, this community offers easy access to shopping, restaurants, and premier medical facilities. Residents will also enjoy Cabarrus County's excellent schools and lower taxes. Start your next chapter right here—your new home is waiting.
Specifications
-
SingleFamily
-
2,883 sqft
-
1.5 Stories
-
3 Baths
-
3 Bedrooms
-
2 Garage
-
2026-08 Built
-
Single Family
