The Courtyards at Lake Davidson
Promenade - 243 Alenda Lux Circle, Mooresville, NC 28115
Details
Special Pricing! Close by 3.31.26
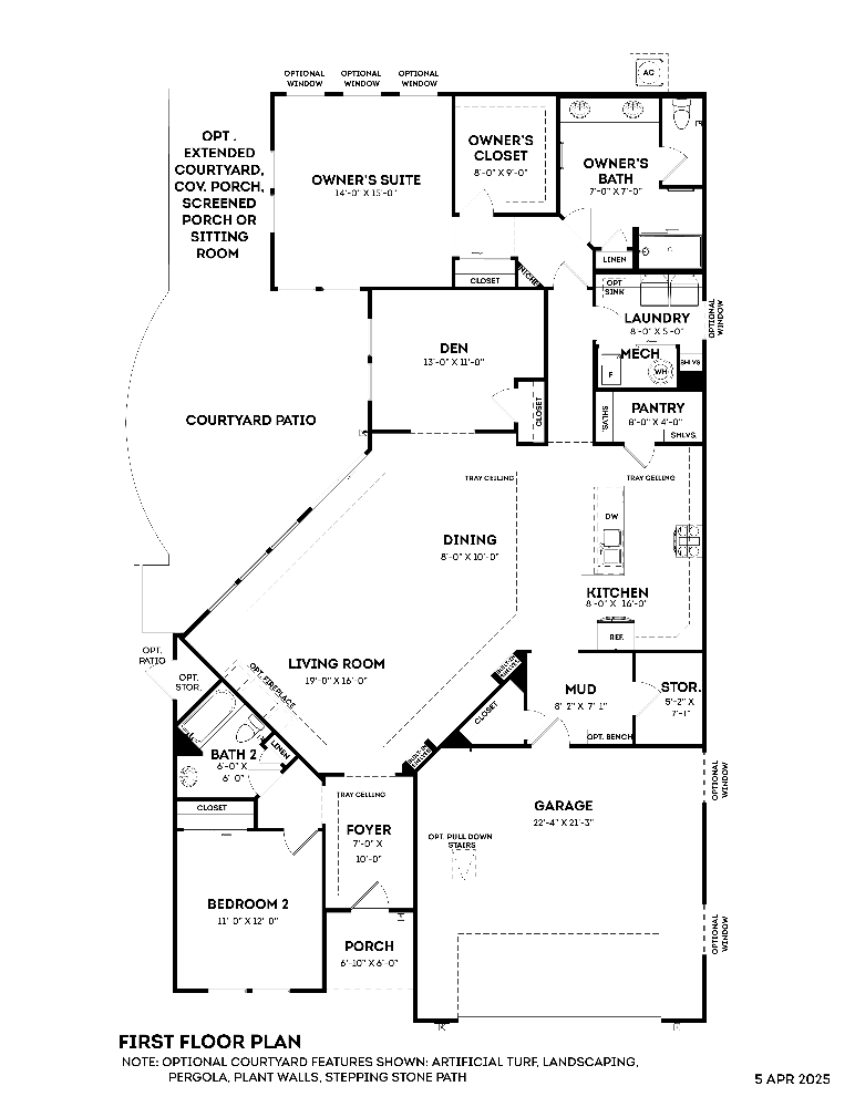
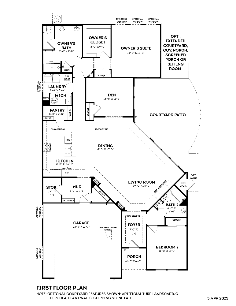
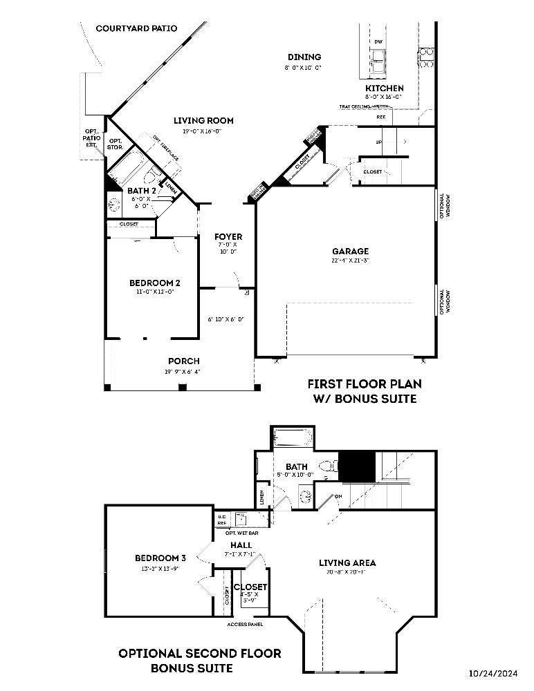
The Promenade offers generous living space designed for comfort, flexibility, and entertaining—perfect for oversized furniture and gatherings with family and friends. This home features a deluxe owner’s suite, an optional gourmet kitchen, a private courtyard, and a secluded den for quiet moments. The included bonus suite adds even more versatility with an additional bedroom and full bath, ideal for guests or extended stays.
Specifications
-
SingleFamily
-
2,969 sqft
-
1 Stories
-
3 Baths
-
3 Bedrooms
-
2.5 Garage
-
Built
-
Single Family
